熱門物件
知識+
桃園航空城
MuliTV 影音
睦生活
我的帳號
會員登入
註冊
我的檔案
我的物件
我的收據
我的最愛
我的已存搜尋
發表新物件
熱門物件
知識+
桃園航空城
MuliTV 影音
睦生活
我的帳號
會員登入
註冊
我的檔案
我的物件
我的收據
我的最愛
我的已存搜尋
發表新物件
臨路8米以上
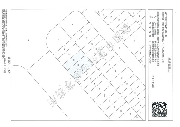
55萬 大園區 富華段25米路安置街廓建地
B-317
物件 ID
電洽
描述
富華段378,379,380地號[
/um_show_content]
地址
國家:
Taiwan
縣/市:
桃園市
鄉/鎮/市/區:
大園區
在 Google Maps 中開啟
概觀
特色
物件 ID
B-317
價格
電洽
物件型態
建地
物件狀態
臨路8米以上
營業員
蔡侑華, 吳和諭
住宅區
地圖
聯絡
評比&回顧
0
0 回顧
5
0 %
4
0 %
3
0 %
2
0 %
1
0 %
0 回顧
登入以回顧
×
登入
註冊
記住我
忘記密碼
登入
取得新密碼
返回登入
我同意接受您的
條款&條件
註冊
比較
輸入您的關鍵字
搜尋